管家婆中特王中王,二四六天天彩944cc246最新开奖号,二四六天天彩944CC更新内容,二四六香港资料期期中剧情介绍,626969免费资料大全查询功能介绍

重庆吊篮租赁量大价格优惠,脚手架租赁、批发找重庆斌盛机械设备租赁有限公司
重庆斌盛机械-脚手架与高空吊篮租赁厂家
斌盛脚手架/吊篮租赁 20年专注大型工程脚手架与吊篮定制生产、出租、批发服务

咨询热线:1398-3187-888

重庆脚手架搭建服务厂家选斌盛
重庆吊篮租赁批发服务商找重庆斌盛
 
  新闻动态
常见问题
斌盛信息
  推荐新闻
您现在的位置:首页 >> 新闻动态 >> 斌盛信息 >>

悬挑式脚手架,你了解吗?

发布时间: 2017/8/3 9:55:57

  摘要:重庆斌盛脚手架租赁公司是专业脚手架和吊篮租赁公司,主要从事:重庆脚手架租赁,联系电话:13983187888!

  一、什么是悬挑式脚手架?

重庆脚手架租赁

  悬挑式脚手架是指架体构造卸荷在附着于建筑构造的刚性悬挑梁(架)上的脚手架,用于建筑施工中的主体或装修工程的作业及其平安防护需求,每段搭设高度不得大于24m。

  悬挑架的支承构造应为型钢制造的悬挑梁或悬挑桁架等,不得采用钢管;其节点应螺栓联合或焊接,不得采用扣件衔接。与建筑构造的固定方式应经设计计算肯定。

  顺应于钢筋混凝土构造、钢构造高层或超高层,建筑施工中的主体或装修工程的作业及其平安防护需求。

  二、悬挑式脚手架施工工艺流程

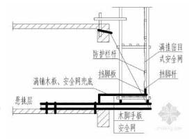
  施工准备→放线定位→预埋圆钢锚环→悬挑架的支承构造装置→竖立杆→将纵向扫地杆与立杆扣接→装置横向扫地杆→装置纵向程度杆→装置横向程度杆→装置连墙件→装置剪刀撑→扎色带及张挂平安网→作业层铺脚手板和挡脚板。

  (1)主体施工,做到防护先行,外架应高出作业楼层1.5m以上。

  (2)锁槽钢底部程度杆,便于槽钢布置

  (3)槽钢布置完成后、拉通线检查并校正外挑长度,确保美观

  (4)转换架层槽钢布置完成后全貌

  (5)程度杆应锁在槽钢顶部焊接的定位桩上,确保架体整体稳定性

  (6)立杆搭设

  (7)装置纵、横向程度杆

  (8)张挂色带

  (9)张挂密目平安网

  (10)搭设完成后组织专项验收,合格前方可投入运用。

  三、悬挑脚手架的搭设请求

  (1)型钢悬挑梁宜采用双轴对称截面的型钢。如工字钢,工字钢构造性能牢靠,双轴对称截面,受力稳定性好,较其他型钢选购、设计、施工便当。

  (2)悬挑钢梁型号及锚固件应按设计肯定,钢梁截面高度不应小于160mm。悬挑梁尾端应在两处及以上固定于钢筋混凝土梁板构造上。锚固型钢悬挑梁的U型钢筋拉环或锚固螺栓直径不宜小于16㎜。

  (3)用于锚固的U型钢筋拉环或螺栓应采用冷弯成型。U型钢筋拉环、锚固螺栓与型钢间隙应用钢楔或硬木楔楔紧。每个型钢悬挑梁外端宜设置钢丝绳或钢拉杆与上一层建筑构造斜拉结。钢丝绳、钢拉杆不参与悬挑钢梁受力计算;

  (4)钢丝绳与建筑构造拉结的吊环应运用HPB235级钢筋,其直径不宜小于20㎜,吊环预埋锚固长度应契合现行国度规范。

  (5)悬挑钢梁悬挑长度应按设计肯定,固定段长度不应小于悬挑段长度的1.25倍。型钢悬挑梁固定端应采用2个(对)及以上U型钢筋拉环或锚固螺栓与建筑构造梁板固定,U型钢筋拉环或锚固螺栓应预埋至混凝土梁、板底层钢筋位置,并应与混凝土梁、板底层钢筋焊接或绑扎结实,其锚固长度应契合现行国度规范。

  (6)锚固位置设置在楼板上时,楼板的厚度不宜小于120mm。假如楼板的厚度小于120mm应采取加固措施。型钢悬挑梁悬挑端应设置能使脚手架立杆与钢梁牢靠固定的定位点,定位点离悬挑梁端部不应小于100mm。

  (7)悬挑钢梁前端应采用吊拉卸荷,吊拉卸荷的吊拉构件有刚性的,也有柔性的,假如运用钢丝绳,其直径不应小于14㎜,运用预埋吊环其直径不宜小于20㎜(或计算肯定),预埋吊环应运用HPB235级钢筋制造。钢丝绳卡不得少于3个。

  (8)悬挑钢梁悬挑长度普通状况下不超越2m能满足施工需求,但在工程构造部分有可能满足不了运用请求,部分悬挑长度不宜超越3m。

  (9)在建筑构造角部,钢梁宜扇形布置;假如构造角部钢筋较多不能留洞,可采用设置预埋件焊接型钢三角架等措施。

  (10)悬挑钢梁支承点应设置在构造梁上,不得设置在外伸阳台上或悬挑板上,否则应采取加固措施。

  四、悬挑式脚手架其他应留意的平安技术问题

  连墙体的设置,剪力撑的设置,纵横向扫地杆的设置,架体单薄位置的增强,卸料平台的搭设等与《建筑施工扣件或钢管脚手架平安技术标准》(JGJ130-2011)的请求根本一样。其中高度超越设计高度的架件,由于悬伸长度较长就降低了悬挑梁的抗弯性能与整体稳定性,因而在此处必需有牢靠的增强措施。

  悬挑架底必须张挂平安平网防护,其他防护也与落地式钢管脚手架一样。

上一篇:重庆地区脚手架租赁市场现状是怎样的? 下一篇:为何选择重庆斌盛高空作业吊篮租赁服务?
版权所有©重庆斌盛机械设备租赁有限公司
地址:重庆市九龙坡区中梁山街道田坝中学旁
联系人:虞经理 023-65497280
渝ICP备20007652号-1

渝公网安备 50010602503103号


营业执照 网站地图
主营项目:重庆脚手架出租,移动脚手架租赁,吊篮租赁,高空吊篮租赁批发销售,欢迎新老客户咨询。
主站蜘蛛池模板: 澳门一肖一码100%准确?| 黄大仙与澳门六肖码的关系| 0149456.cσm查询,澳彩开奖结果| 澳门传真49正版4949| 可以免费追剧的app不用会员| 奥彩开奖结果2024开奖记录查询 | 17岁中国高清免费完整版| 澳门十二生肖图片2024年| 管家婆两组三中三 | 体育游戏有哪些| 澳门王中王精选资料四字澳门王中王精选资料 | 明光专线货运| 香港网站4887铁算| 纽约客的故事在线看| 2024澳门精准正版生肖图| 2021年澳门正版资料全新解析 | 他是谁电视剧24集免费观看完整版高清 | 澳门最猛资料论坛| 87电影电视免费观看| 澳门2023精准免费资料大全| 精装难兄难弟豆瓣| 2023澳门六今晚开奖结果出来澳门开奖下载| 体育学专业基础| 欢迎光临金吊桶论坛精准计算| 澳门特马资料下载 | 2023年澳门全年资料免费大全| 六码期期必中| 8090影院免费高清| 度华年电视剧免费观看星辰影视| 2024年新澳门4949| 龙门客栈澳门资料49图库| 2023澳门天天开彩好资料| 澳门4949开奖资料网站| 澳彩今天开什么号开奖| 新奥马开奖结果查询| 555电影网最新555电影网| 6010电影网| 凡人修仙的电视剧| 086影院喜剧迅雷| 澳门新奥正版精准免费大全| 最新快乐八开奖号码|